
距离团购结束:还有15天时间 106人已报名
129人已参加

2023-03-27
宏发新领域【玺玥麓坊】 个人购买公寓!通燃气带阳台! 五号线洪浪北地铁口零距离 6梯13户!44㎡-71㎡!户型好! 总价270万起,41㎡一房一厅 租金6000起...阅读全文>
钜惠单价
44090
元/m²
距结束
钜惠单价
44150
元/m²
距结束
钜惠单价
44107
元/m²
距结束
钜惠单价
44062
元/m²
距结束
钜惠单价
44000
元/m²
距结束
钜惠单价
44084
元/m²
距结束
| 项目地址: 广东省深圳市宝安新区创业二路与新安三路交汇处(地铁洪浪北D出口) | 开发商: 深圳市宏正达房地产开发有限公司 | 售楼处地址: 广东省深圳市宝安新区创业二路与新安三路交汇处(地铁洪浪北D出口) |
| 物业公司: 深圳市宏发物业服务有限公司 | 开盘时间: | 交房时间: |
| 产权年限: 40年 | 物业类型: 商业 | 车位情况: 529个 |
| 建筑类型: 高层,塔楼 | 计划户数: 529户 | 占地面积: 9662.66 平米 |
| 物业费用: 7.8元/月/平米 | 建筑面积: 89349 平米 |
宏发新领域【玺玥麓坊】
个人购买公寓!通燃气带阳台!
五号线洪浪北地铁口零距离
6梯13户!44㎡-71㎡!户型好!
租金6000起

┈┈┈┈ 玺玥麓坊 ┈┈┈┈
前海宝中双核 44-71㎡核芯资产
项目基本信息:
宏发地产开发:注册名(玺玥麓坊)
产权年限:40年
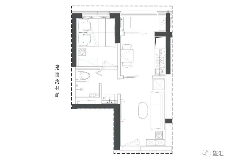
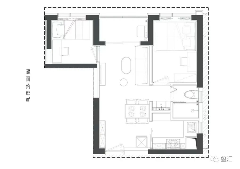
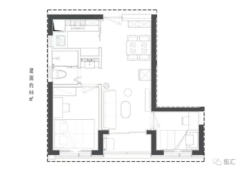
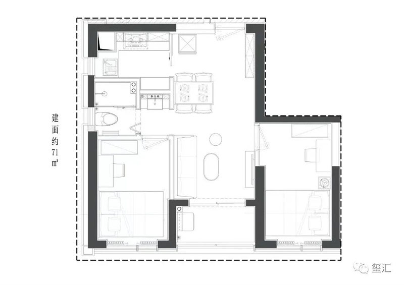
商务公寓户型:44平、53-56平、63-65平、71平1-2房
总套数:529套
梯户比:6梯13户、高46层
批地时间:2018年12月21日
交楼标准:毛坯交付
交楼时间:2024年3月30日
户户有阳台,户户通天然气
宏发物业有限公司:7.8/平
地铁口物业:5号线洪浪北D出口

【世界前海核“芯”版图,擎领湾区增长极】
大湾区国际门户枢纽地位,大前海总体发展规划,共推区域统筹、功能统筹、陆海统筹、岸线统筹,共建全球先进城区,宝安中心区成为国际化城市新中心,宝安都“芯”强势崛起,全面接轨前海标准。

【城“芯”所在稀贵之地,新安都市核心区】
项目位于西部中轴发展线上——新安,与前海共同打造湾区商业中心,沿创业一路、二路,打造创业路“宝安中央商务带”。
前海+宝安中心区双中芯辐射,城市核芯资源尽皆于此,再启生活新想象。

【人贵于邻 居奢于圈】
玺玥华府在旁,千万级大社区共享,形成互联互通的全龄活动空间。
高净值人群聚集地(中洲、华联、大悦城、勤诚达等),共鸣圈层向往。
高新科技产业及总部汇聚于新安,与众多高科技巨头为邻(如腾讯、vivo、亚太卫星、欣旺达、顺丰等集团),与万亿级市值大铲湾相近,时代菁英比邻而居。

【执掌城芯主轴,多维交通畅达各区】
项目紧邻地铁5号线洪浪北站、主干道—宝安发展中轴创业二路,近107国道,与深圳宝安国际机场直线距离约11,链接万象都会生活。


【多元醇熟配套,纵享人文艺术高地】
生态资源:灵芝公园、新安公园、洪浪公园、宝安公园和尖岗山公园等生态绿境;
休闲配套资源:纵享宝中的休闲配套,如海滨广场、宝安体育馆、宝安图书馆、宝安青少年宫、欢乐港湾等地方休闲娱乐;
商业资源:中洲πmall、勤诚达K+广场、海雅缤纷城等大型购物中心环伺;
医疗资源:距离深圳宝安中医院(三甲医院)约1,距离深圳市宝安人民医院(三甲医院)约1.5,距离宝安妇幼保健院约3.5,医疗资源丰富;
教育资源: 宝安中学、孝德学校、灵芝小学、12班幼儿园等教育资源围绕。

【麓生活·尊崇服务体系,考究精致维度】
宏发物业——国家一级资质物业服务企业
针对玺玥麓坊业主量身打造——麓生活·尊崇服务体系
优享5感日常服务(尊重感、愉悦感、优享感、舒适感、安全感)
10重尊享增值服务+12大星级定制化服务,礼遇峯层的生活和文化格调

【登峰作品,献给人生玺玥时】
【湾区时代著作,立序城市封面】
【双入户大堂,至臻归家礼遇】
【出入尊崇有序,品味从容生活】
【全龄化社区,幸福生活主场】
【建面约44-71㎡登峰作品,致敬时代峯层】









您的姓名 已有119人成功报名团购
计算结果