
距离团购结束:还有15天时间 106人已报名
129人已参加

2024-03-13
»»Para park越秀·白云·星汇城««【全广州低门槛全配套的项目】2023年度总销售套数、面积白云TOP1 广州TOP5 !!建面约74-98㎡南向3-4房建面约104-116㎡低密园景准现楼★广州主城区百万方地铁学府大城★5站白云新...阅读全文>
钜惠单价
18108
元/m²
距结束
钜惠单价
19080
元/m²
距结束
钜惠单价
20000
元/m²
距结束
钜惠单价
22040
元/m²
距结束
钜惠单价
23965
元/m²
距结束
| 项目地址: 白云14号线钟落潭地铁站旁 | 开发商: 广州越秀华城房地产开发有限公司 | 售楼处地址: 白云14号线钟落潭地铁站旁 |
| 物业公司: 越秀服务集团有限公司 | 开盘时间: 2023-08-26 | 交房时间: 2026-04-30 |
| 产权年限: 70年 | 物业类型: 普通住宅 | 车位情况: 一期纯住宅停车位1267个 |
| 建筑类型: 板楼,塔楼 | 计划户数: 5900户 | 占地面积: 558000㎡ |
| 物业费用: 2.9元/㎡·月 | 建筑面积: 1022000㎡ |
»»Para park越秀·白云·星汇城««
【全广州低门槛全配套的项目】
2023年度总销售套数、面积白云TOP1 广州TOP5 !!
建面约74-98㎡南向3-4房
建面约104-116㎡低密园景准现楼

★广州主城区百万方地铁学府大城★
5站白云新城 7站珠江新城
12年全龄教育 金广实验中小学在旁
约74-98㎡全南三至四房 近乎0公摊
▬教育买房,首选越秀白云星汇城的必买理由!! ▬
【最火网红配套大盘】2023年白云销量TOP1 广州TOP5
白云销冠:2023年度荣登白云TOP1
(数据来源于克而瑞数据2023年度数据)
白云每卖出5套房子,就有1套是白云星汇城
这多人选择的房子,必定是好房子!!

【最具潜力的板块】千亿白云大健康产业城
—— 千亿级美丽健康城+白云大学城 ——
广州大健康产业基地:投资200亿,规模约等于22个广钢新城,已有何济公、明兴制、广药集团、和黄中药等29家知名健康产业企业入驻,健康城整体包含医药研制、职业教育、健康服务和健康养生四大功能片区;
广州第二大学城:已有13所高等教育院校,拥有仲恺农业工程学院、广东白云学院、广州软件学院、广州科技职业技术大学等本科大学,为湾区打造科技人才。


【最快交通路网】5站白云新城 7站珠江新城
—— 立体交通路网 通往广州核心区 ——
1地铁
项目位于地铁14号线钟落潭站旁,5站到嘉禾望岗,换乘2、3号线可直通白云新城和畅达广州全城;
14号线二期(在建中)不换乘直达广州火车站;
18号线北延段(在建中),在白云东平站与14号线交汇,7站即可到冼村。
2城轨
竹料站换乘双城轨,广佛环线(目前全线工程累计完成93%,预计2024年通车)3站天河智慧城,5站到琶洲;
新白广城轨(在建中)1站白云机场,南向通达东莞和深圳。
5干道
华南快速、京港澳高速、机场第二高速、花莞高速、广从公路,畅达全城,纵横大湾区。

【交付即城熟】兑现力“2倍数”加速
推动配套全面动工、加速兑现运营,
构建有温度的社区圈层,打造500米步行配套圈!
下楼即可享受便捷齐全的大城生活配套!
大城配套“现城”,广州优质盘少见!

【大城社区生活圈】社区生活不出“圈”500米内尽享
—— 百万方有趣社交微城市 文体配套全面动工 ——
百万方规模,相当于78个标准足球场大小,超一半面积用于配套
“两轴一中心”布局满足理想生活
东西TOD生态轴 | 南北教育文体轴
【学校配套进度】
—— 12年教育 金广实验中小学在旁——
社区内2所幼儿园+1所小学+1所中学
小学/中学由白云区金广实验学校具体管理
目前金广小学已封顶,金广中学已动工
12年目送式教育 给孩子留住黄金学习时间



〖实力金广〗中考成绩连续6年名列前茅
2023广州中考荣获公民双第一
2023年最高分770,奥1班平均分757.89
金广奥体系班平均分741.64


【文体/商业配套进度】
—— 华南首家李宁运动中心已开业 ——
2所体育馆,冲浪/健身房/瑜伽/羽毛球/网球等尽情玩
李宁IP奥运冠军教练,从小培养孩子奥运精神
体育馆B馆已封顶

—— 广州首个飞盘公园打造青年生活场 ——
约2.2万方飞盘公园、约等于三个标准足球场
约1800m²草坪露营区,2个街心花园等
飞盘/露营/live|夜跑等生活方式无界限!


—— 下楼即大型缤纷商业 ——
约3.3万方商业,部分商业投入使用,
涵盖超市/餐饮/文娱/儿童游乐等业态,
麦当劳已意向进驻,繁华生活就在家门口,
周边庆达广场/人人佳等大型商超加持

—— 市政配套下楼即享 ——
少年宫、政务中心、医院(规划)、公交首末站等一应俱全,社区内可以帮你解决一切生活问题;
少年宫已完成外立面铺设;政务中心地下室底板施工,网红公交站办理竣工验收,即将投入使用

【钱少室多】白云星汇城2.0,每个户型近百使用率,全南向,高赠送
二期约74-98㎡全南三至四房,火热销售中!!
【配套升级】
更近金广小学,目送式上学
【产品升级】
户户朝南,360°无遮挡采光
同样的面积,享受更大的居住空间
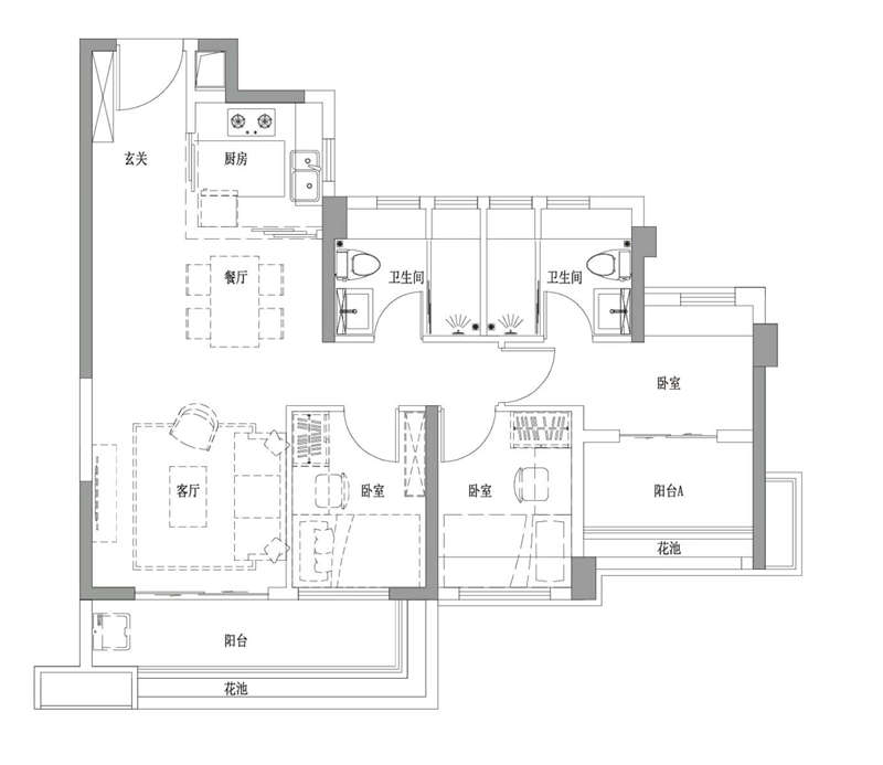
—— 【二期户型一览】 ——
反卷神户型——接近零公摊
【建面约74㎡ 3室2厅2卫】
三开间朝南| 卧室、阳台朝南,最小面积三房享受最大阳光与风景
一体化客厅背景墙|一体化背景墙,收纳展示两不误
270°全景卧室| L型双面采光,明亮通透
270°方正景观阳台| 方形阳台更实用,视野开阔

【建面约88㎡ 3室2厅2卫】
四开间朝南| 卧室客厅都朝南,更多阳光更宽视野
主套南北通| 自带“鲜氧新风”和阳光梳妆台
更多飘窗设置| 更多灵动空间,房间更实用
270°宽景阳台| 景观视野更开阔

【建面约87㎡ 3室2厅2卫】
4.5开间朝南| 270°阳台/卧室/玄关都朝南
LDKG一体化| 开放式厨房、餐客厅一体
入户玄关| 入户更私密,收纳空间更多
主套南北通| 自带“新氧新风”和阳光梳妆台

【建面约98㎡ 4室2厅2卫】
入户玄关| 入户更私密,收纳空间更多
开放式厨房| 烹饪照顾孩子两不误
豪华大方厅| 书房客厅合并,豪宅舒适感
主套270°采光| 更多飘窗,采光实用两不误

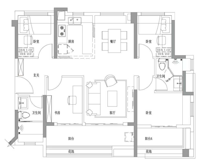
—— 【一期户型一览】 ——
【建面约116㎡ 4室2厅2卫】
低密小高层 | 专梯入户 | 准现楼奢阔园景四房

大城配套渐成,未来缤纷生活都浓缩在这座大城里
您的姓名 已有119人成功报名团购
计算结果