
距离团购结束:还有15天时间 106人已报名
129人已参加

钜惠单价
27941
元/m²
距结束
钜惠单价
27380
元/m²
距结束
钜惠单价
33157
元/m²
距结束
钜惠单价
33613
元/m²
距结束
钜惠单价
36809
元/m²
距结束
| 项目地址: 深圳市坪山区坪山街道龙坪路与金丰路交汇处东南侧 | 开发商: 深圳市和城房地产开发有限公司 | 售楼处地址: 深圳市坪山区坪山街道龙坪路与金丰路交汇处东南侧 |
| 物业公司: 华侨城物业 | 开盘时间: 2021-11-05 | 交房时间: 2023-10-31 |
| 产权年限: 70年 | 物业类型: 普通住宅 | 车位情况: 2298个 |
| 建筑类型: 塔楼 | 计划户数: 2046户 | 占地面积: 43983.21 ㎡ |
| 物业费用: 暂无资料 | 建筑面积: 321782.82 ㎡ |
「和城里」
坪山C位 央企华侨城 学仕美宅
建面约65-163㎡2-4房美宅已全面封顶,家期可待!
一、基本信息
项目地址:深圳坪山中心区·龙坪路与金丰路交汇处
建筑面积:约32万㎡
产品类型:住宅、公寓、商业
配套:自带建面约2.4万㎡商业、建面约3200㎡幼儿园
产品类型:建面约65-163㎡2-4房住宅
精致户型: 建面约65-67㎡ 2房2厅1卫
建面约81-84㎡ 3房2厅1卫
建面约92-97㎡ 3房2厅2卫
建面约114-118㎡ 4房2厅2卫
建面约121-122㎡ 4房2厅2卫
建面约131-132㎡ 4房2厅2卫
建面约162-163㎡ 4房2厅3卫
物业公司:华侨城物业
二、项目价值①双企联袂 打造品质人居华侨城——央企置业信心保障 央企华侨城,精研生活37载,2022中国房地产品牌影响力百强企业
以美好初心与品质匠心成就系列人居
六和集团 ——坪山城市筑基者 匠心塑造坪山坐标六和城、益田假日世界,致力于提升坪山人居生活品质
华侨城华南集团联袂六和 匠心打造——和城里 延续华侨城一脉传承品质基因,代言城市时代精神和人居理想
为坪山——礼献生活艺术美学作品
②深圳新枢纽 深圳斥1.4万亿打造东部增长极,坪山获约6000亿,约1.5倍于前海、4.8倍于福田
深圳形成"一区两核多园"的高新区发展布局,"两核"中坪山高新园区总面积达51.6平方,是南山高新园区(8.52平方)的6倍!
③立体多维交通 双地铁∶16号线新和站(在建中,预计2022年底通车)、14号线坪山广场站(在建中,预计2022年底通车)
坪山高铁站∶ 直抵深圳北站、福田站,贯穿湾区城市群
四大高快速路∶南坪快速、外环高速、东部过境通道(在建)、坪盐通道,速通全程
比亚迪云巴∶畅享坪山生活圈(在建中)
④丰盛生活观绿意而品意境 邂逅优雅人生 近拥建面约48万㎡半月环公园(规划中),毗邻集大剧院、图书馆、美术馆、展览馆、文创体验馆、会议中心、书城、影城等于一体的坪山文化聚落。自然为伍,人文为伴,步享优雅生活。
拥揽城芯繁华 抵达生活美好 自带建面约2.4万㎡艺术BOX商业街区,毗邻天虹购物中心、益田假日世界等成熟商圈,近享城芯丰盛。
文脉氤氲成长 和城里自身配建幼儿园, 周边环绕坪山实验学校、东北师范大学深圳坪山实验学校等九年一贯制书香学府。
⑤和城里,建面约32万㎡都市美学综合体一轴多中心布局 四大剧场园林 全龄泳池、景观会客厅、风雨连廊,24共享社区等多重景观功能分布
简雅入户大堂 轻奢美学入口大堂,5重归家礼序,礼宾级会客礼仪
建面约2.4万㎡艺术街区 艺术BOX开放商业街区,打造生活购物、漫步休闲的活力广场
自带建面约3200㎡幼儿园 配建幼儿园,书香为邻
南北贵雅双入口 定义生活贵雅礼序一路美景相随,尊贵与惬意随心切换
⑥创想人居,历久弥新舒居臻雅户型 建面约65-163平2-4房天幕美宅,引领人居格调
现代艺术立面 简雅质感设计,打造人居美学
弯月塔楼布局 约99-168优美建筑脊线,演绎阔境人生
创想生活作品融入自然、人文、品质的生活意境
⑦华侨城物业 国家一级资质物管,秉承华侨城高品质物业标准
致力于为业主的优质生活服务,用专业与细致为业主营造美好的生活体验。
⑧全面封顶,家期可待项目所有楼体已封顶,美好家期指日可待
照片拍摄于2022年8月17日三、户型鉴赏户型平面落位图
建面约162-163㎡ 阔境五房,臻藏大美与和谐

建面约118-120㎡ 阔境四房,臻藏大美与和谐
建面约97-98㎡ 舒居三房,尽展空间释能生活
建面约83-84㎡ 极致三房,纵享空间的满分户型
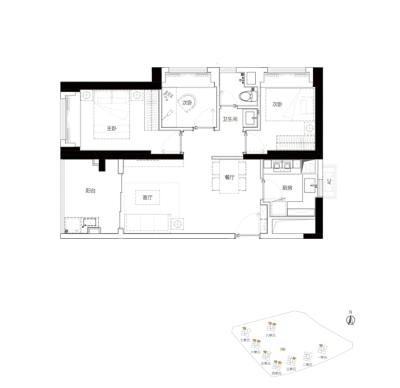
建面约65-67㎡ 精致两房,私享灵动生活空间
您的姓名 已有119人成功报名团购
计算结果